|
|
Расширенный поиск проекта |
|
|
|
Проекты домов по категориям |
|
|
Проект двухэтажного дома ИДК-158: 158,00 кв.м
|
60 000 руб.
|
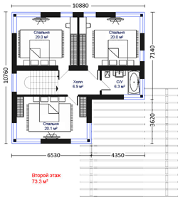
Планировки дома
Готовый проект дома серии "Ладный". Конструктивные особенности: ленточный фундамент из ж/б блоков по монолитной подошве, плоская крыша с наплавляемым кровельным покрытием, пристроенный навес для парковки двух автомобилей. Особенности планировочных решений: жилая комната на 1 этаже, котельная с отдельным входом. Наружные несущие стены дома выполнены из щелевого керамического кирпича с наружным утеплением и отделкой термопанелью. Дом для постоянной жизни за городом семьи из 5-6 человек.
Котельная: да.
Комната на 1 этаже: да.
Навес для авто: 2 автомобиля.
Площадь общая: 162,00 кв.м. + 50.00 кв.м. навес.
Высота 1 этажа: 2,900 м.
Высота 2 этажа: 2,900 м.
Габаритные размеры дома: 10,880 х 10,760 м. (без навеса)
Минимальные размеры участка: 17,00 x 17,00 м.
Технология и конструкция: строительство дома из керамического кирпича (крупноформатного камня)
| Фундамент |
ленточный из сборных блоков по монолитной подушке |
| Конструкция стен |
кладка 380 мм из щелевого кирпича, утеплитель -фасадная термопанель ППС толщиной 70 мм |
| Тип перекрытий |
сборные железобетонные с монолитными участками по металлическим балкам |
| Конструкция крыши и кровли |
деревянная стропильная система утепленная, покрытие кровли- металлочерепица |
| Конструкция лестницы |
монолитная железобетонная |
| Отделка фасада |
фасадная термопанель с отделкой клинкерной плиткой |
АКЦИИ на этот проект дома
Бесплатная доставка Почтой России во все регионы РФ !!!
|
ПРИМЕЧАНИЕ:
- Состав проектной документации:
- Архитектурно-Строительный раздел (АР + КР) = да.
- Инженерные разделы (ОВ, ВК,ЭО) (ИС) = нет.
- Стоимость проектной документации >>>
Серия проектов домов "Ладный"
| Проект дома ИДК-131 |
Проект дома ИДК-162 |
Проект дома ИДК-177 |
| Проект дома ИДК-187 |
Проект дома ИДК-252 |
Проект дома ИДК-146 |
| Проект дома ИДК-302 |
Проект дома ИДК 234-2 |
| Предложение |
Товар/Услуга |
| СТРОИТЕЛЬСТВО |
Калькулятор стоимости материалов ➤
|
| БЕСПЛАТНО |
Экспресс-доставка проектов во все регионы России бесплатно! |
| ЦЕНЫ |
Мы не посредники и не перепродаем проекты по завышенным ценам. Обратившись к нам вы сможете напрямую заключить договор на приобретение готового проекта дома или индивидуальное проектирование непосредственно с архитекторами авторами проектной документации и по ценам, которые они предлагают. |
| ПОДАРКИ |
При покупке любого проекта серий ДС и ДСГ мы дарим вам проект бани ДС 34-6. |
 |
Сроки Экспресс-Доставки Вашего заказа "от двери до двери" по России |
| Москва, Санкт-Петербург, Орел, Белгород, Рязань, Курск, Нижний Новгород, Казань, Ярославль, Калуга, Иваново |
1 день |
| Калининград, Архангельск, Краснодар, Ростов-на-Дону, Астрахань, Волгоград, Самара, Саратов, Екатеринбург, Новосибирск, Омск, Томск, Сургут, Тюмень, Новый Уренгой, Ханты-Мансийск, Барнаул, Челябинск, Пермь, Красноярск, Ижевск, Уфа |
2 дня |
| Хабаровск, Владивосток, Иркутск, Якутск, Улан-Удэ |
3 дня |
| Салехард, Нерюнгри, Южно-Сахалинск, Абакан, Чита |
4 дня |
| Доставка в страны СНГ |
3 - 5 дней |
|
|
Новые проекты домов и коттеджей
Лучший проект месяца. Январь 2024г. Проект двухэтажного дома с гаражом ДС 244-9
|
|
|
Мы оказываем помощь и даем грамотные и профессиональные консультации по подбору готовых проекты домов, коттеджей, бань, гаражей, бассейнов, беседок и других малоэтажных построек. В нашем каталоге также широко представлены проекты коммерческого назначения (мотели, магазины, автомойки). Мы оказываем свои услуги по всей России и странам СНГ. Проектная документация разработана в соответствии с действующими строительными нормами и правилами, принятыми в Российской Федерации и обеспечивает безопасную для жизни и здоровья людей эксплуатацию объекта при соблюдении предусмотренных рабочими чертежами мероприятий. Мы оказываем содействие не только в подборе готовых проектов домов самых лучших архитекторов России, но также можем помочь вам с индивидуальным проектированием по вашим эскизам. Кроме этих проектных работ, мы можем предложить и рекомендовать вам услуги надежных строительных компаний работающих в Московской области и других регионах России.
|
|