|
|
Расширенный поиск проекта |
|
|
|
Проекты домов по категориям |
|
|
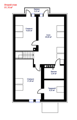
Проект небольшого дома ГЮ 155-74: 155,74 кв.м
|
56 000 руб.
|
|
Проект компактного загородного дома из газобетонных блоков.
Комната на 1 этаже: да.
Гардеробные: да.
Балкон: да.
Площадь застройки: 113,00 кв.м.
Площадь общая дома + крыльцо и балкон: 155,74 кв.м. + 5,30 кв.м.
Площадь жилая: 94,93 кв.м.
Строительный объем здания: 585,60 куб.м.
Высота 1 этажа: 2,700 м.
Высота 2 этажа: от 1,720 м до 2,800 м.
Высота дома в коньке от уровня земли: 7,020 м.
Технология и конструкция: Строительство дома из газобетона.
Фундамент: монолитная железобетонная плита.
Цоколь: монолитный ж/б.
Стены наружные: из газобетонных блоков толщиной 400 мм. (D500) + минераловатный утеплитель 80 мм.
Стены внутренние: из газобетонных блоков толщиной 400 мм. (D500).
Дымоходы и вент. каналы: из полнотелого кирпича М150.
Перегородки: блоки газобетона 150 мм и каркасные 150 мм.
Перекрытия: по деревянным балкам.
Крыша: мансардная, утепленная.
Кровля: кровельная жесть.
Наружная отделка: цоколь - облицовка камнем, наружные стены - декоративная штукатурка и окраска.
Габаритные размеры дома: 8,300 х 13,300 м. (без крыльца)
Минимальные размеры участка: 15,00 x 20,00 м.
Зеркальная проекция: да.
ПРИМЕЧАНИЕ:
- Состав проектной документации:
- Архитектурно-Строительный раздел (АР + КР) = да.
- Инженерные разделы (ОВ, ВК,ЭО) (ИС) = нет.
- Стоимость проектной документации >>>
|
Основные строительные объемы проекта дома ГЮ 155-74
| Наименование |
Ед. измерения |
Количество |
| Блоки газобетона толщиной 400 мм. |
куб.м. |
87.13 |
| Блоки газобетона толщиной 150 мм. |
куб.м. |
3.47 |
| Площадь облицовки камнем. |
кв.м. |
20.00 |
| Пустотелый керамический кирпич М150. |
куб.м. |
2.45 |
| Полнотелый керамический кирпич М150. |
куб.м. |
5.88 |
| Фасадная доска (планкен). |
кв.м. |
26.50 |
| Площадь кровли. |
кв.м. |
156.40 |
АКЦИИ на этот проект дома
Бесплатная доставка Почтой России во все регионы РФ !!! |
| Предложение |
Товар/Услуга |
| СТРОИТЕЛЬСТВО |
Калькулятор стоимости материалов ➤
|
| БЕСПЛАТНО |
Экспресс-доставка проектов во все регионы России бесплатно! |
| ЦЕНЫ |
Мы не посредники и не перепродаем проекты по завышенным ценам. Обратившись к нам вы сможете напрямую заключить договор на приобретение готового проекта дома или индивидуальное проектирование непосредственно с архитекторами авторами проектной документации и по ценам, которые они предлагают. |
| ПОДАРКИ |
При покупке любого проекта серий ДС и ДСГ мы дарим вам проект бани ДС 34-6. |
 |
Сроки Экспресс-Доставки Вашего заказа "от двери до двери" по России |
| Москва, Санкт-Петербург, Орел, Белгород, Рязань, Курск, Нижний Новгород, Казань, Ярославль, Калуга, Иваново |
1 день |
| Калининград, Архангельск, Краснодар, Ростов-на-Дону, Астрахань, Волгоград, Самара, Саратов, Екатеринбург, Новосибирск, Омск, Томск, Сургут, Тюмень, Новый Уренгой, Ханты-Мансийск, Барнаул, Челябинск, Пермь, Красноярск, Ижевск, Уфа |
2 дня |
| Хабаровск, Владивосток, Иркутск, Якутск, Улан-Удэ |
3 дня |
| Салехард, Нерюнгри, Южно-Сахалинск, Абакан, Чита |
4 дня |
| Доставка в страны СНГ |
3 - 5 дней |
|
|
Новые проекты домов и коттеджей
Лучший проект месяца. Январь 2024г. Проект двухэтажного дома с гаражом ДС 244-9
|
|
|
Мы оказываем помощь и даем грамотные и профессиональные консультации по подбору готовых проекты домов, коттеджей, бань, гаражей, бассейнов, беседок и других малоэтажных построек. В нашем каталоге также широко представлены проекты коммерческого назначения (мотели, магазины, автомойки). Мы оказываем свои услуги по всей России и странам СНГ. Проектная документация разработана в соответствии с действующими строительными нормами и правилами, принятыми в Российской Федерации и обеспечивает безопасную для жизни и здоровья людей эксплуатацию объекта при соблюдении предусмотренных рабочими чертежами мероприятий. Мы оказываем содействие не только в подборе готовых проектов домов самых лучших архитекторов России, но также можем помочь вам с индивидуальным проектированием по вашим эскизам. Кроме этих проектных работ, мы можем предложить и рекомендовать вам услуги надежных строительных компаний работающих в Московской области и других регионах России.
|
|