| 
 | 
Расширенный поиск проекта | 
 | 
 
 |  
 
 
 
		
 
 
 
 
 | 
Проекты домов по категориям | 
 | 
 
 
			
							
 
 
 | 
 
 
	
 
		
	
	
	
		Проект дома с мансардой ДС 168-45:  		168,45	 кв.м
	 | 
	
		
							30 000 руб.					
	 | 
	 
	 
	
	
 
	
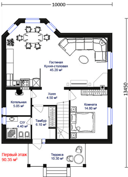
Планировки дома
	
	
Проект дома с большой жилой площадью. Наружные несущие стены дома выполнены из крупноформатных керамических поризованных камней.
  
Котельная: да. 
Комната на 1 этаже: да. 
Терраса: да. 
Балкон: да. 
Камин: да.
  
Площадь общая: 168,45 кв.м. 
Габаритные размеры дома: 10,000 х 13,450 м. 
Минимальные размеры участка: 16,00 x 20,00 м.
 
 Технология и конструкция: строительство дома из поризованной керамики
  
    | Характеристики | 
    Варианты | 
    Разработан | 
 
    | Фундамент | 
    1. Монолитный ж/б ленточный 2. Сборный ж/б ленточный 3. Свайный ж/б с ростверком | 
    Да Возможно Возможно | 
 
    | Конструкция внешних стен | 
    Однородная кладка | 
    Да | 
 
    | Материал внешних несущих стен | 
    Кирпич. Керамические крупноформатные поризованные блоки. | 
    Да | 
 
    | Толщина внешних стен (отделка: штукатурка) | 
    300 мм | 
    Возможно | 
 
    | Толщина внешних стен для Центральных регионов РФ | 
    430 мм (термическое сопротивление конструкции 3,284 м2*С/Вт) | 
    Да | 
 
    | Толщина внешних стен для Северо-Восточных регионов РФ | 
    460 мм (термическое сопротивление конструкции 4,395 м2*С/Вт) | 
    Возможно | 
 
    | Материал внутренних несущих стен | 
    Керамические крупноформатные поризованные блоки. | 
    Да | 
 
    | Материал перегородок 1-го этажа | 
    Керамические крупноформатные поризованные блоки. | 
    Да | 
 
    | Материал перегородок 2-го этажа | 
    1. Керамические крупноформатные поризованные блоки. 2. Каркасные, по LVL брусу. | 
    Возможно Да | 
 
    | Стены вент. каналов | 
    Керамические вентиляционные шахты. | 
    Да | 
 
    | Оконные блоки | 
    Пластиковые индивидуального изготовления. | 
    Да | 
 
    | Конструкция пола 1-го этажа | 
    1. Сборные ж/б плиты перекрытия 2. Монолитные ж/б перекрытия | 
    Да Возможно | 
 
    | Конструкция пола 2-го этажа | 
    1. Перекрытия брус LVL 2. Сборные ж/б плиты перекрытия 3. Монолитные ж/б перекрытия | 
    Да Возможно Возможно | 
 
    | Конструкция крыши | 
    Мансардная. | 
    Да | 	
 
    | Материал для кровля | 
    1. Металлочерепица 2.  Гибкая черепица 3. Цементно-песчаная черепица | 
    Возможно Возможно Да | 
 
    | Материал для отделки фасада | 
    1. Облицовочный кирпич 2.  Декоративная штукатурка | 
    Да Возможно | 
 
    | Материал для отделки цоколя | 
    Декоративный камень | 
    Да | 
 
 
 
АКЦИИ на этот проект дома 
    | Купив проект этого дома вы можете выбрать в подарок: | 
 
      Проект бани ДС 34-6 | 
 
    Бесплатная доставка Почтой России во все регионы РФ !!!
 | 
 
 
	
Изменения в конструктивный раздел проекта (по желанию заказчика) 
    | Конструкция | 
    Стоимость к базовой цене, руб. | 
    Сроки, раб. дней | 
 
    | Переработка фундамента (монолитный ж/б ленточный, сборный ж/б ленточный, свайно-ростверковый ж/б) | 
    Бесплатно | 
    до 10 | 
 
    | Замена материалов для отделки фасада (кирпич, штукатурка) | 
    Бесплатно | 
    до 10 | 
 
    | Замена типа перекрытий (брус, монолитное ж/б, сборные плиты ж/б) | 
    Бесплатно | 
    до 10 | 
 
    | Другие изменения (зеркальная проекция, планировки и т.д.) | 
    Договорная | 
    По согласованию | 
 
 
ПРИМЕЧАНИЕ:
-  Состав проектной документации: 
- Архитектурно-Строительный раздел (АР + КР) =  да.
- Инженерные разделы (ОВ, ВК,ЭО) (ИС) =  нет.
- Срок подготовки проектной документации =  5-25 рабочих дней.
-  Стоимость расчета сметы >>>
-  Стоимость проектной документации >>>
Варианты проекта дома ДС 168-45
 
 
    | Проект дома ДС-168 | 
 
 
 
	| Предложение | 
	Товар/Услуга | 
 
	
		| СТРОИТЕЛЬСТВО | 
		 Калькулятор стоимости материалов ➤
 | 
	 
	
		| БЕСПЛАТНО | 
		Экспресс-доставка проектов во все регионы России бесплатно! | 
	 
	
		| ЦЕНЫ | 
		Мы не посредники и не перепродаем проекты по завышенным ценам. Обратившись к нам вы сможете напрямую заключить договор на приобретение готового проекта дома или индивидуальное проектирование непосредственно с архитекторами авторами проектной документации и по ценам, которые они предлагают. | 
	 
	
		| ПОДАРКИ | 
		При покупке любого проекта серий ДС и ДСГ  мы дарим вам проект бани ДС 34-6. | 
	 
 
	
      | 
    Сроки Экспресс-Доставки Вашего заказа "от двери до двери" по России | 
 
    | Москва, Санкт-Петербург, Орел, Белгород, Рязань, Курск, Нижний Новгород, Казань, Ярославль, Калуга, Иваново | 
	1 день | 
 
    | Калининград, Архангельск, Краснодар, Ростов-на-Дону, Астрахань, Волгоград, Самара, Саратов, Екатеринбург, Новосибирск, Омск, Томск, Сургут, Тюмень, Новый Уренгой, Ханты-Мансийск, Барнаул, Челябинск, Пермь, Красноярск, Ижевск, Уфа | 
    2 дня | 
 
    | Хабаровск, Владивосток, Иркутск, Якутск, Улан-Удэ | 
    3 дня | 
 
    | Салехард, Нерюнгри, Южно-Сахалинск, Абакан, Чита | 
    4 дня | 
 
    | Доставка в страны СНГ | 
    3 - 5 дней | 
 
 
 
	 
 
 
 
	 
 
 
 | 
 | 
					 
													Новые проекты домов и коттеджей 
												
						
 
					 
													Лучший проект месяца. Январь 2024г. Проект двухэтажного дома с гаражом ДС 244-9 
												
						
 
 | 
 | 
 | 
	 Мы оказываем помощь и даем грамотные и профессиональные консультации по подбору готовых проекты домов, коттеджей, бань, гаражей, бассейнов, беседок  и других малоэтажных построек. В нашем каталоге также широко представлены проекты коммерческого назначения (мотели, магазины, автомойки). Мы оказываем свои услуги по всей России и странам СНГ. Проектная документация разработана в соответствии с действующими строительными нормами и правилами, принятыми в Российской Федерации и обеспечивает безопасную для жизни и здоровья людей эксплуатацию объекта при соблюдении предусмотренных рабочими чертежами мероприятий. Мы оказываем содействие не только в подборе готовых проектов домов самых лучших архитекторов России, но также можем помочь вам с индивидуальным проектированием по вашим эскизам. Кроме этих проектных работ, мы можем предложить и рекомендовать вам услуги надежных строительных компаний работающих в Московской области и других регионах России. 
 | 
 |