Расширенный поиск проектов
Проекты домов
по категориям
Проекты домов
по материалам
Проекты
строений
Сравнение товаров: 0 товаров
Ваша корзина пуста

Добавить в избранное Удалить из избранного Проектов в избранном: 0

Проект двухэтажного деревянного дома из клееного бруса ЭД 174-7, 174,7 кв.м

Рассчитать смету

35 000 руб.


Проект дома ЭД 174-7


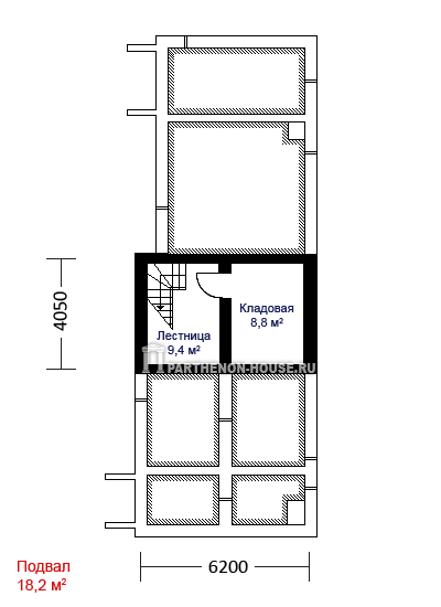
подвал дома ЭД 174-7 1 этаж дома ЭД 174-7 2 этаж дома ЭД 174-7

Описание:
Проект двухэтажного с частично выстроенным подвалом деревянного дома из клееного бруса. Проект дома может быть реализован на узком участке. Планировки дома комфортны и удобны для круглогодичного проживания за городом семьи из четырех человек.

Камин: да.
Котельная: да.
Кладовая: да.
Терраса: да.
Балконы: да.
Гардероб: да.

Площадь общая: 174,70 кв.м.
Площадь жилая: 71,50 кв.м.


Высота подвала: 2,40 м.
Высота 1 этажа: 2,80 м.
Высота 2 этажа: 3,20 м.

Технология и конструкция: строительство дома из клееного бруса.
Наружные стены: клееный брус.
Внутренние стены: клееный брус.
Перекрытия: над подвалом - железобетон, межэтажное - по деревянным брусьям.
Конструкция крыши: деревянная, стропильная.
Лестницы: деревянные.

Фундамент и подвал: монолитный железобетон с гидроизоляцией, утеплителем и прижимной стенкой.

Отделка.
Кровля: металлочерепица.

Инженерные решения:
Отопление: от газового котла, газ магистральный. Предусмотрены отопительные напольные каналы и стальные радиаторы.
Водоснабжение: из центральных сетей.
Вентиляция: в подвале запроектирована вытяжная вентиляция с механическим побуждением и естественная вентиляция, в с/у - электрические вытяжные вентиляторы.
Канализация: в центральную сеть.
Электроснабжение: от местных энергосетей.

Габаритные размеры дома: 17,79 х 6,20 м.
Минимальные размеры участка: 24,0 х 13,0 м.
Зеркальная проекция: нет.
Проект в другой технологии строительства: нет.
ПРИМЕЧАНИЕ:
- Состав: АР + КР = 35000 руб.
- Рабочий комплект: (АР + КР + ИС) = 46000 руб.


Предложение Товар/Услуга
СТРОИТЕЛЬСТВО Калькулятор стоимости материалов ➤
БЕСПЛАТНО Экспресс-доставка проектов во все регионы России бесплатно!
ЦЕНЫ Мы не посредники и не перепродаем проекты по завышенным ценам. Обратившись к нам вы сможете напрямую заключить договор на приобретение готового проекта дома или индивидуальное проектирование непосредственно с архитекторами авторами проектной документации и по ценам, которые они предлагают.
ПОДАРКИ При покупке любого проекта серий ДС и ДСГ мы дарим вам проект бани ДС 34-6.

Стоимость проекта АР+КР: 35 000 руб.
Стоимость проекта АР+КР+ИС: 46 000 руб.
Архитектурный паспорт проекта: 4 000 руб.
Заказать дополнительную копию проекта:
НЕ заказывать копию проекта:  
1 копия проекта: 4 000 руб.
2 копии проекта: 8 000 руб.
Выбрать проекцию дома:
Проект: прямая проекция  

По вопросам консультации или приобретения проектной документации по этому проекту просьба звонить по телефону:
+7 926-377-46-81

 
Как правильно оформить заказ проекта дома на parthenon-house.ru?

Проект дома
Сроки Экспресс-Доставки Вашего заказа "от двери до двери" по России
Москва, Санкт-Петербург, Орел, Белгород, Рязань, Курск, Нижний Новгород, Казань, Ярославль, Калуга, Иваново 1 день
Калининград, Архангельск, Краснодар, Ростов-на-Дону, Астрахань, Волгоград, Самара, Саратов, Екатеринбург, Новосибирск, Омск, Томск, Сургут, Тюмень, Новый Уренгой, Ханты-Мансийск, Барнаул, Челябинск, Пермь, Красноярск, Ижевск, Уфа 2 дня
Хабаровск, Владивосток, Иркутск, Якутск, Улан-Удэ 3 дня
Салехард, Нерюнгри, Южно-Сахалинск, Абакан, Чита 4 дня
Доставка в страны СНГ 3 - 5
дней

Назад в раздел